1과목: 산업디자인 일반
1. 다음중인간과도구의 상호작용이중요한 연구대상인 디자인 분야는?
2. 선에 대한설명 중 옳은 것은?
3. 마켓쉐어(market share) 란?
4. 다음 중 시각적 안정감과 명쾌감을 유발시키는 구성 원리인 균형에 속하지 않은 것은?
5. 실내디자인의 기본요소중 인간의 접촉빈도가 가장 높은 것은?
6. 실내디자인 프로세스를 조사분석 단계와 디자인 단계로 구분 할 때 디자인 단계에 속하는 것은?
7. 러스킨의 자극을 받아 사람들에게 숙련공에 의한 성실한 수공예품을 권장하고, 기계로 인한 기쁨이 없는 노동을 윤리적인 입장에서 비난한 사람은?
8. 서로 다르고 관련성을 찾아내어 아이디어를 발상하는 방법은?
9. 다음인쇄 판식에 관한 설명 중 잘못된 것은?
10. 디자이너가 즉흥적으로 떠오르는 여러 가지 생각을 메모하기 위한최초의 스케치는?
11. 빅터 파파넥(Victor Papanek)이 말하는 디자인의 복합기능 중재료와 도구, 공정과의 상호작용을 의미하는 것은?
12. 1960년대 팝(POP) 디자인 운동의 특징이 아닌 것은?
13. 소비자 행동에 영향을 미치는 요인과 가장 거리가 먼 것은?
14. 도로나 도로변의산기슭, 논, 밭 같은 곳에 설치하는 간판은?
15. 다음 중 편집 디자인의 형태별 분류가 잘못된 것은?
16. 다음 중 시각법칙의 원리와 가장거리가 먼 것은?
17. 주거 공간의 이용적 특성에 다른 분류에서 개인적 공간은?
18. 다음 중 포장 디자인의 요건과 거리가 먼 것은?
19. 소비자의 생활유형중에서유동적구매의 소비자 집단에 대한 설명으로 올바른 것은?
20. 다음 중 일반적으로 초기에 영역구분과 구체성에 구애받지 않고 수행하는 발산적 아이디어 발상법은?
2과목: 색채 및 도법
21. 다음 중 색의 연상과 상징이 잘못 연결된 것은?
22. 동시대비에 관한 설명 중 잘못된 것은?
23. 색료의 3원색을 혼합한 결과가 맞는 것은?
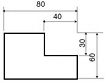
24. 오스트발트 색채조화론 중 ni-ne-na와 같이 기호 앞의 문자가 같은 색들끼리의 조화는?
25. 다음 도형에서 구하고자 하는 것은?
26. 타원을 그리는 방법이 아닌 것은?
27. 투시도법의 종류 중 직접법에 대한 설명으로 맞는 것은?
28. 표면색과 관련된 설명 중 틀린 것은?
29. 예로부터 전해 내려오는 습관상의 고유 색명은?
30. 투시도나 렌더링이 공통적으로 미치는 표현기법의 영역과 비교적 거리가 먼 것은?
31. 현색계에 관한 설명 중 틀린 것은?
32. 붉은 색채의 실내에서 시간이 길게 느껴지는 등, 색의 속도감을 강조한 사람은?
33. 다음 채도에 관한 설명 중 잘못된 것은(오류 신고가 접수된 문제입니다. 반드시 정답과 해설을 확인하시기 바랍니다.)
34. 등각 투상도에서 등각축의 각도는?
35. 다음 중 인접색 조화에 해당되는 것은?
36. 다음 중 치수가 가장 바르게 기입된 것은?




37. 다음 도형을 제3각법에 의해 작도할 때 필요한 투상면(평면도 - 정면도- 우측면도)을 바르게 고른 것은?
38. 하얀 바탕 종이에 빨간색 원을 놓고 얼마간 보다가 하얀 바탕종이를 빨간색 종이로 바꾸어 놓을 경우 빨간색 원은 어떤 색의 원으로 지각되는가?
39. 다음 중 인간이 색을 지각하기 위한 3요소가 아닌 것은?
40. 투시도법의 용어 중 물체의 각 점이 수평선상에 모이는 점은?
3과목: 디자인 재료
41. 다음 중 금속과 비금속의 복합체로 이루어진 것은?
42. 다음 플라스틱 중 투명성이 좋아 유기 유리라고 부르는 것은?
43. 다음 중 대표적인 포장용지로 사용되는 것은?
44. 복제할 때 많이 사용되는 반투명 황산지로, 파스텔 렌더링을 할 때 앞 뒷면의 명암을 조절할 수 있는 용지는?
45. 컬러 필름 중 현실의 상과 반대로 필름에 만들어지는 것은?
46. 다음의 종이 제조 공정을 올바른 순서로 나열한 것은?
47. 목재의 역학적 성질 중 외력을 받아 변형된 재료에서 외력을 제거했을 때 원형으로 복귀하려는 성질은?
48. 스트리퍼블(Strippable)페인트의 설명으로 잘못된 것은?
4과목: 컴퓨터 그래픽스
49. 컴퓨터 애니메이션중 만화영화제작 방법은?
50. 다음 중 픽셀에 대한 설명으로 틀린 것은?
51. 그래픽 이미지의 종류 중 벡터 그래픽 이미지에 대한 설명이 잘못된 것은?
52. 중앙처리장치(CPU)에 대한 설명 중 잘못된 것은?
53. 로토스코핑(Lotoscoping)이란?
54. 포토샵 프로그램에서 레이어상의 픽셀테두리 부분에 하이라이트와 그림자를 형성하여 돌충효과를 나타내는 기능으로 짝지어진 것은?
55. 유비쿼터스 네트워킹과 관련이 가장 먼 것은?
56. 다음 컴퓨터그래픽스의 개념에 대한 설명 중 부적합한 것은?
57. 와이어 프레임 모델에 대한 설명으로 틀린 것은?
58. 3차원 물체에 색상, 음영, 질감을 입히는 표현기법이며 완성제품과 조금도 다르지 않게 그려지기 때문에 팜플렛 및 광고 선전을 위해 사용하는 표현 방법은?
59. 대상물의 3차원 좌표를 측정하여 컴퓨터에 XYZ 좌표를 얻는 장치로, 레이저 등을 입체 대상물에 비추어 대상물에 직접 접촉하지 않고도 좌표를 측정할 수 있는 입력장치는?
60. 중 AutoCAD에서 다중선을 그리는 명령으로 건축도면 작성시 벽면을 그리는데 유용한 명령은?